ΠΛΗΡΟΦΟΡΙΕΣ
FLOORS : 1 & Basement
MAIN AREAS: 180 m²
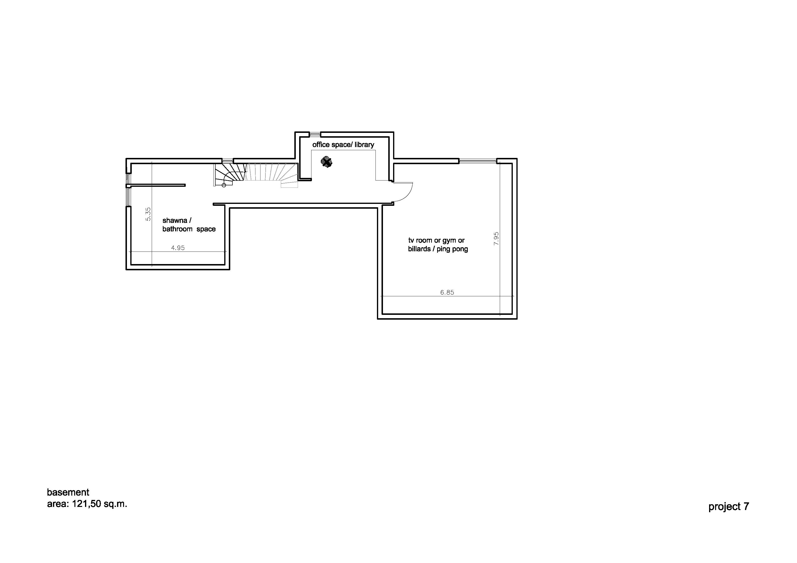
BASEMENT AREA: 51,5 m²
COVERED VERANDAS AREAS: 27 m²
TOTAL AREA: 259 m²
POOL AREA: 55,5 m² / PERGOLA AREA: 79 m²
BEDROOMS: 3 / BATHROOMS: 2
EXTRAS: OFFICE – GARAGE

Σχετικα με το Artect

Είμαστε τεχνικό γραφείο απαρτιζόμενο αποκλειστικά από πτυχιούχους μηχανικούς που αναλαμβάνουμε την μελέτη και υλοποίηση κατασκευών υψηλών απαιτήσεων με ανταγωνιστικότερες και ποιοτικότερες συμφωνίες προκειμένου για να εξυπηρετήσουμε πελάτες ειδικών απαιτήσεων σε λογικές τιμές.

Επικοινωνία

Τηλ: 6973 77 8 999
Fax: 2821 0 69774
Ηλεκτρονική Διεύθυνση
[email protected]
[email protected]
Διεύθυνση Γραφείου
25ης Μαρτίου 1 - ΤΘ 725
Κουνουπιδιανά - ΤΚ 73142
Χανιά - Κρήτη

Χάρτης

Τελευταία Νέα